5553 HANKIN DRIVE
Richmond, British Columbia, V7C5N2
$2,398,000
About This Property
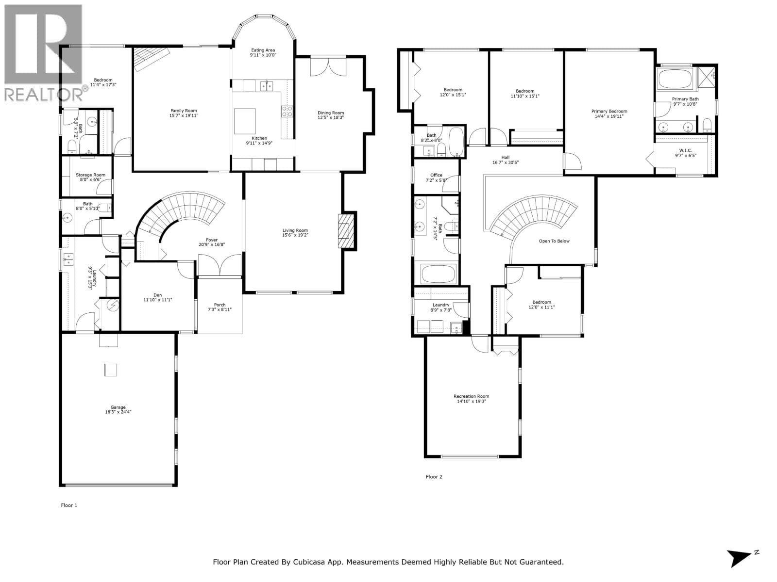
Priced for quick sale! Nestled in prestigious TERRE NOVA. Rarely found a custom-built house on an 8,003 SQFT LOT & 4,001 SQFT living area with functional layout. House located at a quiet street with great environment. Walking distance to school, dyke and mall. Hardwood floor and stairs. Elegant high foyer with 9' ceiling. Radiant heat in whole building. Air exchange system. Listing price is $188K below BC Assessment Value. Tenanted Property, showings on Friday & Saturday afternoons before 5pm by appointment only. 24 hours notice request. (id:64938)
Quick Info
MLS#
R3033688
Days on Market
276
Listed On
Aug 6, 2025

Aman Nanda
Personal Real Estate Corporation
Property Details
Architecture
Features / Amenities
Property Features
Tax / Financial
Location
Mortgage Calculator
5-Year FixedYour monthly payment
$10,739
Incl. tax & strata

Aman Nanda
DLC AIMI Collective Mortgage Group
Whether you're a first-time buyer or refinancing, I'll help you find the right mortgage — straightforward advice, no pressure.
Rates are for guidance only, not guaranteed, and not an approval of credit. Speak with a Mortgage Professional for the most accurate information.
Not sure what you can afford?
Find out in under 2 minutes — no credit check, no commitment. See your estimated approval amount and monthly payment instantly.

Listing Office
Listing provided courtesy of Royal Pacific Realty Corp.

Aman Nanda
Personal Real Estate Corporation










