5225 6 AVENUE
Delta, British Columbia, V4M4H5
$1,400,000
About This Property
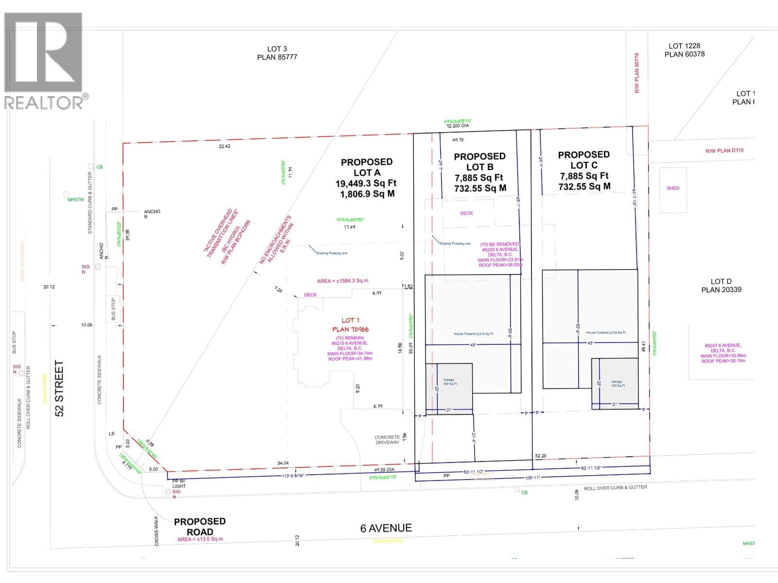
Opportunity to purchase a 28,749 sq.ft.(0.658 acre)-with RS4 zoning. MUST be sold in conjunction with adjacent property-5215 6th Ave 6550 sq. ft.lot lot(0.15 acre) MLS # .Total parcel size of 35,159 sq.ft. Potential to build homes/duplex + coach homes or mixed residential (new City of Delta OCP allows up to 16 townhomes or more, or 4 units per lot- or build your dream home-two rectangular lots) buyer to verify with the city. Must be sold together (5215 +5225 6th Ave.) Excellent location in central Tsawwassen, close to transit, schools and amenities. Arborist report available of the mostly level lots. Note ROW north/west side of property. Contact LS for detailed information package for this unique opportunity! (id:64938)
Quick Info
MLS#
R3099751
Days on Market
56
Listed On
Mar 14, 2026

Aman Nanda
Personal Real Estate Corporation
Property Details
Architecture
Property Features
Tax / Financial
Location
Mortgage Calculator
5-Year FixedYour monthly payment
$6,295
Incl. tax & strata

Aman Nanda
DLC AIMI Collective Mortgage Group
Whether you're a first-time buyer or refinancing, I'll help you find the right mortgage — straightforward advice, no pressure.
Rates are for guidance only, not guaranteed, and not an approval of credit. Speak with a Mortgage Professional for the most accurate information.
Not sure what you can afford?
Find out in under 2 minutes — no credit check, no commitment. See your estimated approval amount and monthly payment instantly.

Listing Office
Listing provided courtesy of RE/MAX Westcoast

Aman Nanda
Personal Real Estate Corporation








