3870 216 STREET
Langley, British Columbia, V3A8P2
$3,333,300
About This Property
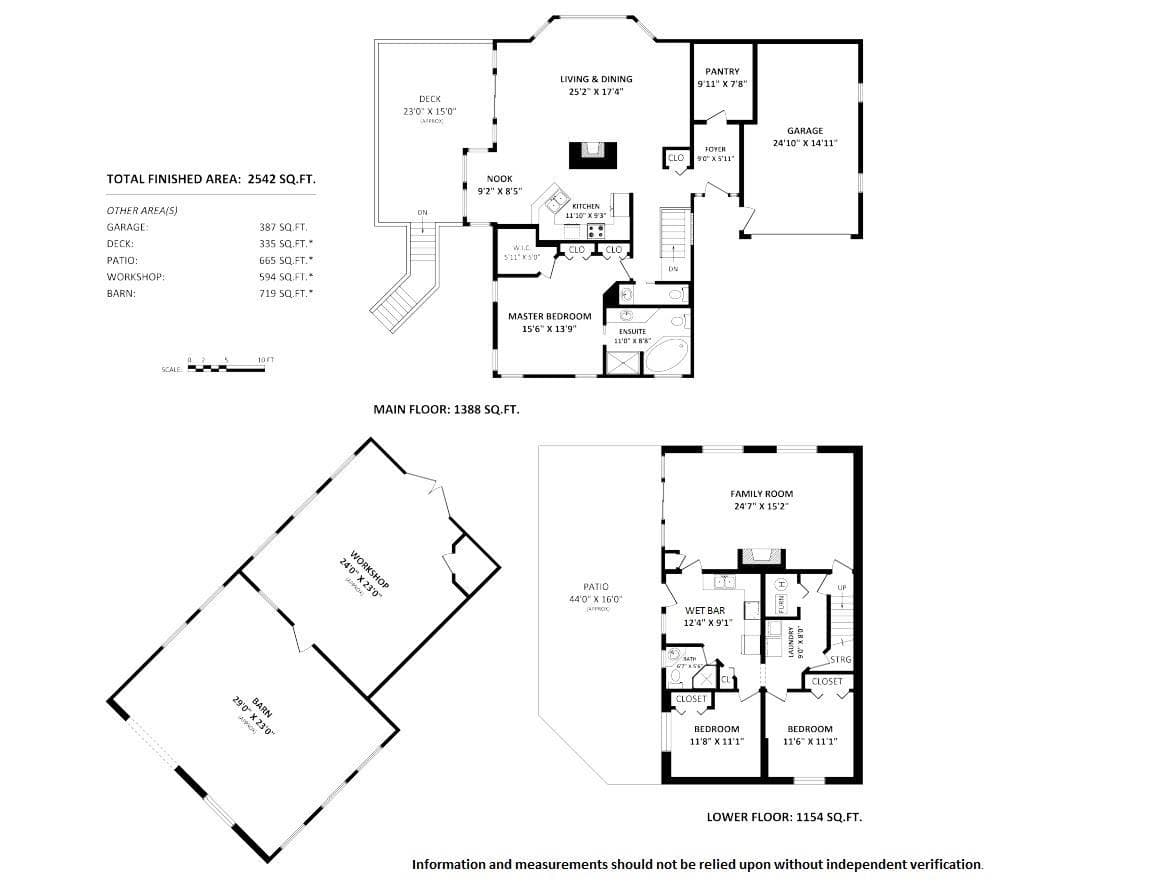
UNIQUE OPPORTUNITY with revenue potential. An extremely rare offering of privacy & solitude on 16.3 acres in prime Murrayville, minutes to schools, shopping, golf courses & city amenities. Long, gated driveway leads to parklike country estate w/rolling pastures, mature cedars & stunning ravine where Murray & Best Creeks flow-watch salmon spawn in your own backyard. Level-entry main floor living w/ open plan design & huge covered outdoor living area w/gas heater, plus walk-out basement w/bright 2-bedrm suite. Excellent multi-generational potential w/never-lived-in 1,400 SF modular home (2 beds + den, 2 baths) in its own private setting. 29'x23' barn, 24'x23' heated shop, Christmas trees (for 2026 Farm Status), blueberry & fruit tree, separate fenced garden w/irrigation, ample parking & room for pool, riding ring or hobby farm. Rhonda has sole conduct of sale and is highly motivated to find buyers ready to make this property their own. Private, peaceful & irreplaceable - A true Murrayville Unicorn! (id:64938)
Quick Info
MLS#
R3076985
Days on Market
126
Listed On
Jan 9, 2026

Aman Nanda
Personal Real Estate Corporation
Property Details
Architecture
Features / Amenities
Property Features
Tax / Financial
Location
Mortgage Calculator
5-Year FixedYour monthly payment
$14,105
Incl. tax & strata

Aman Nanda
DLC AIMI Collective Mortgage Group
Whether you're a first-time buyer or refinancing, I'll help you find the right mortgage — straightforward advice, no pressure.
Rates are for guidance only, not guaranteed, and not an approval of credit. Speak with a Mortgage Professional for the most accurate information.
Not sure what you can afford?
Find out in under 2 minutes — no credit check, no commitment. See your estimated approval amount and monthly payment instantly.

Listing Office
Listing provided courtesy of Royal LePage - Wolstencroft

Aman Nanda
Personal Real Estate Corporation











