31297 WAGNER DRIVE
Abbotsford, British Columbia, V2T5G1
$1,124,999
About This Property
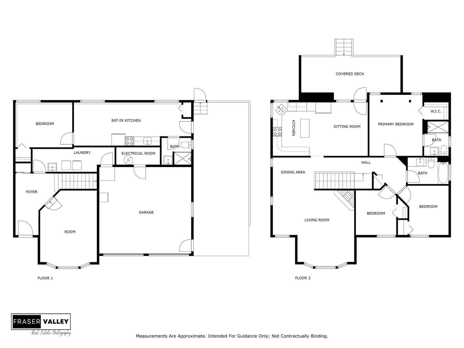
West Abbotsford - 2350sqft - 5 Bedroom 3 Full Bathroom Home. Recently updated, new roof, new windows, A/C & 1 Bed legal basement. Perfect location nearby, schools, temple, shopping & highway 1. (id:64938)
Quick Info
MLS#
R3083186
Days on Market
101
Listed On
Jan 27, 2026

Aman Nanda
Personal Real Estate Corporation
Property Details
Architecture
Features / Amenities
Property Features
Tax / Financial
Location
Mortgage Calculator
5-Year FixedYour monthly payment
$5,177
Incl. tax & strata

Aman Nanda
DLC AIMI Collective Mortgage Group
Whether you're a first-time buyer or refinancing, I'll help you find the right mortgage — straightforward advice, no pressure.
Rates are for guidance only, not guaranteed, and not an approval of credit. Speak with a Mortgage Professional for the most accurate information.
Not sure what you can afford?
Find out in under 2 minutes — no credit check, no commitment. See your estimated approval amount and monthly payment instantly.

Listing Office
Listing provided courtesy of Nationwide Realty Corp.

Aman Nanda
Personal Real Estate Corporation











