2136 165B STREET
Surrey, British Columbia, V3Z0V6
$1,460,000
About This Property
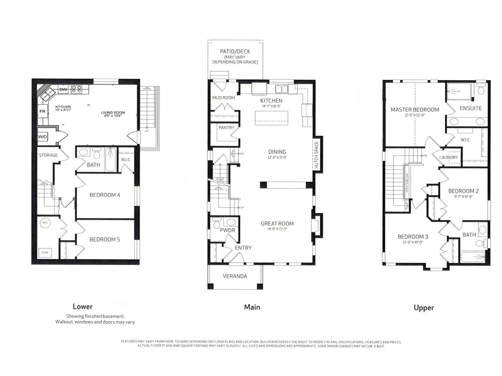
Welcome to Edgewood Gate by Foxridge Homes, an exceptional single-family home in a prestigious neighbourhood. Featuring 10' ceilings on the main level with oversized windows, bright and stunning, and a vaulted primary bedroom ceiling. Thoughtfully designed open-concept layout with centre island, walk-in pantry, and ample storage. Family-friendly community close to great schools, parks, walking trails, shopping, dining, and recreation. A perfect place to live, grow, and connect-don't miss it! (id:64938)
Quick Info
MLS#
R3087884
Days on Market
88
Listed On
Feb 9, 2026

Aman Nanda
Personal Real Estate Corporation
Property Details
Community Information
Architecture
Features / Amenities
Property Features
Tax / Financial
Location
Neighbourhood: Sullivan Station
Mortgage Calculator
5-Year FixedYour monthly payment
$6,703
Incl. tax & strata

Aman Nanda
DLC AIMI Collective Mortgage Group
Whether you're a first-time buyer or refinancing, I'll help you find the right mortgage — straightforward advice, no pressure.
Rates are for guidance only, not guaranteed, and not an approval of credit. Speak with a Mortgage Professional for the most accurate information.
Not sure what you can afford?
Find out in under 2 minutes — no credit check, no commitment. See your estimated approval amount and monthly payment instantly.

Listing Office
Listing provided courtesy of Realtyline

Aman Nanda
Personal Real Estate Corporation








