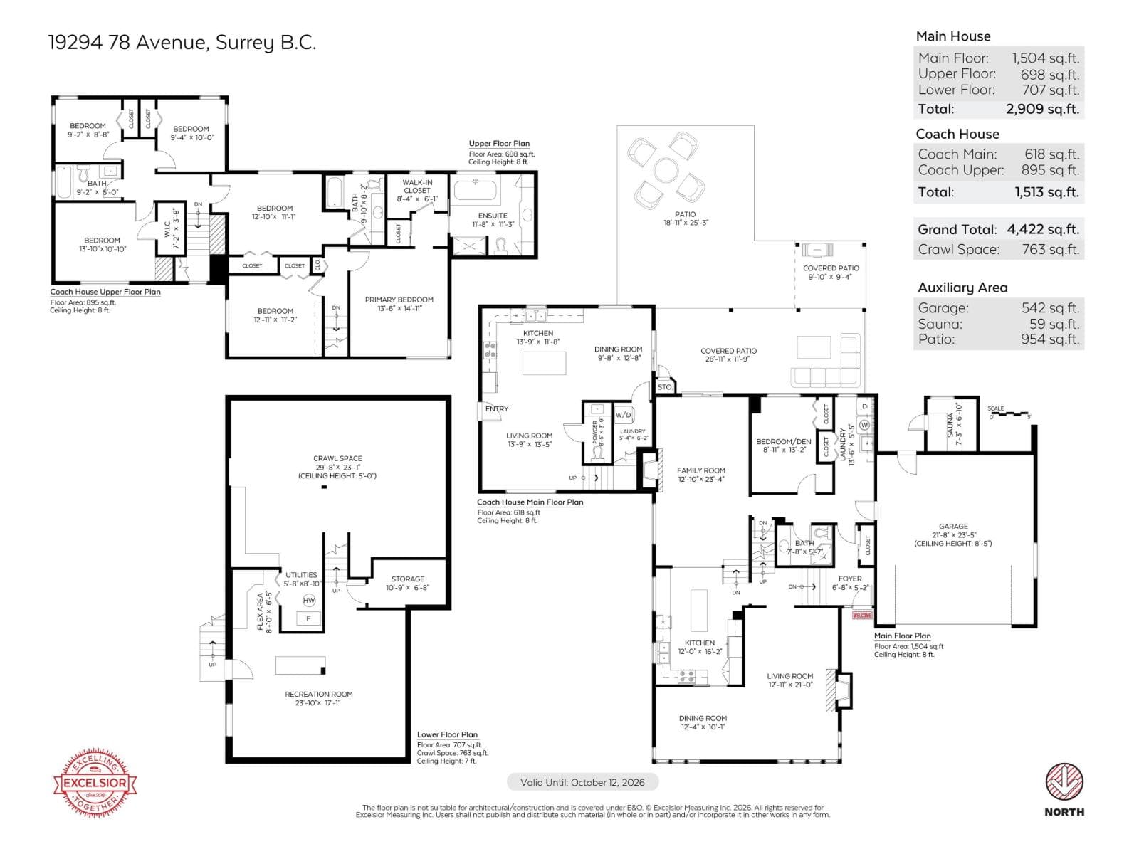
19294 78 AVENUE
Surrey, British Columbia, V4N6C7
$3,499,000
About This Property
Prime 1.19 acre property on a quiet street in a sought after location. This beautifully updated legal duplex style home offers exceptional flexibility as a strong investment or ideal multifamily residence. With 7 bedrooms, 5 bathrooms and over 4.400 sq ft, the layout provides spacious living on all levels. Multiple kitchens, generous living area and private spaces make it perfect for extended family. Ample parking, double garage and fantastic outbuildings add to the value. A rare opportunity offering space, income potential and long term upside in a prime setting. (id:64938)
Quick Info
MLS#
R3091716
Days on Market
78
Listed On
Feb 19, 2026

Aman Nanda
Personal Real Estate Corporation
Property Details
Community Information
Architecture
Features / Amenities
Property Features
Tax / Financial
Location
Neighbourhood: Clayton Heights
Mortgage Calculator
5-Year FixedYour monthly payment
$15,362
Incl. tax & strata

Aman Nanda
DLC AIMI Collective Mortgage Group
Whether you're a first-time buyer or refinancing, I'll help you find the right mortgage — straightforward advice, no pressure.
Rates are for guidance only, not guaranteed, and not an approval of credit. Speak with a Mortgage Professional for the most accurate information.
Not sure what you can afford?
Find out in under 2 minutes — no credit check, no commitment. See your estimated approval amount and monthly payment instantly.

Listing Office
Listing provided courtesy of Royal LePage Little Oak Realty

Aman Nanda
Personal Real Estate Corporation










