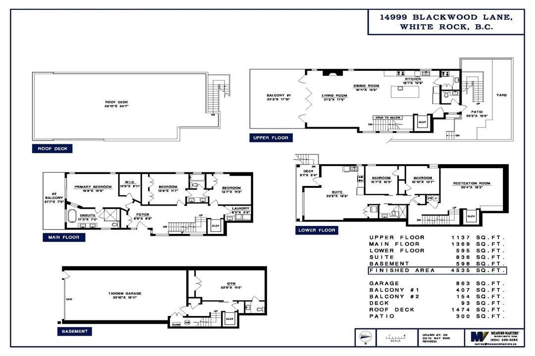
14999 BLACKWOOD LANE
White Rock, British Columbia, V4B2A8
$3,799,000
About This Property
Incredible pier & ocean views, 4,535 SF of living space on 4 levels maximizing views & privacy. Elevator, nano walls, A/C, radiant heated floors w/ concrete between floors, exec contemp kitchen w/island, euro appl pkg & wok kitchen. Control4. Lux spa inspired bathrms & 5 large bedrooms. Primary bedroom w/ocean view. Gym, media lounge & legal 2 bdrm suite. View open & covered balconies, patios & sundecks exceed 2,500 SF w/ a rooftop deck overlooking the pier. Entertain in grand style on top of the world. Easy walking distance to dining at the pier or stroll White Rock Beach Promenade. Schools: White Rock Elementary & Semiahmoo Secondary. 4 car garage 708 SF & driveway for 4 cars. East side of property, city green Space-no neighbor. Brochure avail. ONE OF THE BEST VIEWS IN THE CITY! (id:64938)
Quick Info
MLS#
R3082850
Days on Market
102
Listed On
Jan 26, 2026

Aman Nanda
Personal Real Estate Corporation
Property Details
Architecture
Features / Amenities
Property Features
Tax / Financial
Location
Mortgage Calculator
5-Year FixedYour monthly payment
$17,005
Incl. tax & strata

Aman Nanda
DLC AIMI Collective Mortgage Group
Whether you're a first-time buyer or refinancing, I'll help you find the right mortgage — straightforward advice, no pressure.
Rates are for guidance only, not guaranteed, and not an approval of credit. Speak with a Mortgage Professional for the most accurate information.
Not sure what you can afford?
Find out in under 2 minutes — no credit check, no commitment. See your estimated approval amount and monthly payment instantly.

Listing Office
Listing provided courtesy of Hugh & McKinnon Realty Ltd.

Aman Nanda
Personal Real Estate Corporation










